Loft in vendita

Milano, Via Ferrante Aporti - Loreto Venini
€ 248.000
2 locali 2 locali
50 Mq 50 Mq
1 bagno 1 bagno

Loft in vendita

Milano, Via Ferrante Aporti - Loreto Venini

Descrizione annuncio

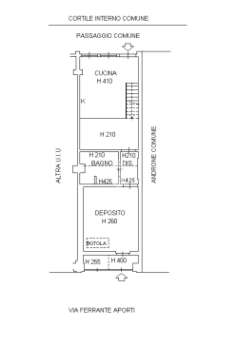
. Proponiamo in vendita NUOVO e LUMINOSO - LOFT con SOPPALCO e ampia metratura di pertinenza. In particolare proponiamo in vendita l'unità ' AUDIFREDDI, luminoso e funzionale Immobile costruito intorno agli anni '60, servito da una rete capillare di collegamenti pubblici. L'Appartamento è nuovo con Impianti certificati e si trova al Piano Terra. Caratteristiche Immobile: Muratura in laterizio con isolamento acustico. Pareti Perimetrali Muratura in laterizio. Pareti Interne divisorie Pavimentazione in gres porcellanato (piano terra); Parquet prefinito essenza rovere naturale(soppalco); Bagno: finitura pareti smalto lavabile; Doccia: piatto doccia e rivestimento doccia in Gres porcellanato. Pavimenti e Rivestimenti Impianti idrico-sanitario ed elettrico nuovi con certificazioni; Acqua calda sanitaria con scaldabagno elettrico; Riscaldamento/ Raffreddamento autonomo a pompa di calore Impiantistica: Portoncino blindato d'ingresso; Serramenti in PVC a taglio termico certificati; Tapparelle (lato strada) Serranda sicurezza (lato strada) Serramenti interni ed esterni Impianto Allarme Volumetrico Preali Loft, composti da Piano Terra, con Ampia zona giorno con predisposizione per una cucina lineare con annessa zona pranzo per 4 persone, ampia zona bagno con un confortevole doccia, grande sala hobby con possibilità di ampia armadiatura- Soppalco molto luminoso e funzionale, Riscaldamento autonomo ed aria condizionata canalizzata.

Offriamo un servizio di valutazione gratuita per conoscere il valore dell'immobile. Non lasciarti sfuggire questa opportunità! Contattaci per ulteriori informazioni e per prenotare una visita.

Mostra tutto

Nelle vicinanze

Trasporto pubblico Trasporto pubblico
Rovereto
Rovereto
430 m
Pasteur
Pasteur
510 m
Milano Centrale
Milano Centrale
1,1 Km
stazione di Milano Lambrate
stazione di Milano Lambrate
2,1 Km
Greco Rovereto
Greco Rovereto
160 m
Ricariche auto elettriche Ricariche auto elettriche
BeCharge Milano S. Rafael
720 m
A2A Isola Digitale Piazza Argentina
1,1 Km
A2A Isola Digitale Stazione Centrale
1,3 Km
U2 Supermercato Milano Vallazze | EnelX
1,5 Km
Best Western Plus Hotel Galles
1,5 Km
Scuole Scuole
Scuola Primaria Venini
250 m
Istituto Milano scuola paritaria
670 m
Scuola Secondaria di Primo Grado Teodoro Ciresola
670 m
Liceo Classico Giosuè Carducci
710 m
Civico Polo Scolastico "Alessandro Manzoni"
720 m
Farmacia Farmacia
Farmacia
180 m
Farmacia Dottor Barni
330 m
Farmacia Confalonieri
350 m
Farmacia Bandi
430 m
Farmacia Dottor Berta
450 m
Ospedali Ospedali
Istituto Clinico Città Studi
1,3 Km
San Raffaele - Turro
1,4 Km
Polo riabilitativo Istituto Gaetano Pini
1,6 Km
Istituto Villa Marelli
1,6 Km
Humanitas San Pio X
2,0 Km
Supermercati Supermercati
Simply Market
330 m
Conad City
480 m
Ok Sigma
530 m
Carrefour Expres
580 m
Simply City Market
700 m
Negozi Negozi
Carrefour Express
200 m
City Mini Market
220 m
Nadia Mini Market
260 m
Lussy
290 m
Negozi
330 m
Bar Bar
Ghe Pensi Mi
220 m
NoLoSo
310 m
Baia Disco Club
380 m
Tunnel Club
460 m
Il Gianguaro
580 m
Ristoranti Ristoranti
Chifa Peru
100 m
El Rincón de Lupita
100 m
El Chorrillano
110 m
Aki Me Kedo
150 m
Ristoranti
170 m
Mostra tutto

Caratteristiche

Rif.:
61190851
Piano:
Terra di 7 con ascensore
Totale piani:
7
Camere da letto:
1
Arredamento:
Assente
Condizionamento:
Autonomo
Mostra tutto
Prezzo Prezzo
€ 248.000
Rata mutuo Rata mutuo
€ 1.169 / mese
Spese annue Spese annue
€ 900
Proponi il tuo prezzoProponi il tuo prezzo

Classe Energetica

C
C
C
C
C
C
C
C
C
EP globale non rinnovabile:
11273.00 kW h/m² anno
EP invernale del fabbricato:
EP estiva del fabbricato:
Anno di costruzione:
1968
Riscaldamento:
Autonomo
Tipo impianto:
Ad aria
Tipo alimentazione:
Aria

Ti interessa visionare l'immobile?

Fissa un appuntamento  Fissa un appuntamento

Richiedi informazioni

Clicca su Leggi per aprire l'informativa
* Questi campi sono obbligatori

Calcola il tuo mutuo

Semplice e senza impegno
Anticipo

( % )
Mutuo

( % )

pochi semplici passi

inserisci i tuoi dati
Questionario completato
Grazie per aver richiesto un appuntamento senza impegno con un nostro Consulente del Credito e Assicurativo.

Hai inserito correttamente tutti i dati necessari e a breve riceverai una e-mail con un link da convalidare per inviare i tuoi dati.
Affiliato
Studio Venini Sas
Via Venini, 59 20127 Milano (MI)

Il nostro staff


  • Alessandro Pucci
    Affiliato
Via Venini, 59 20127 Milano (MI)
Zona: Loreto - Venini - Rovereto
Mostra su mappa
Orari: da lunedì a venerdì: 9.00/12.30-14.30/20.00; sabato: 9.00/12.30-pomeriggio su appuntamento
Affiliato
Studio Venini Sas
Via Venini, 59 20127 Milano (MI)

2026 Tecnocasa Franchising S.p.A. - P. IVA 08365160152 - Via Monte Bianco 60/A 20089 Rozzano (MI). Ogni agenzia ha un proprio titolare ed è autonoma. Privacy policy | Policy utilizzo | Cookie policy