Quadrilocale in vendita

Milano, Viale Monza - Viale Monza
€ 448.000
4 locali 4 locali
95 Mq 95 Mq
1 bagno 1 bagno

Quadrilocale in vendita

Milano, Viale Monza - Viale Monza

Descrizione annuncio

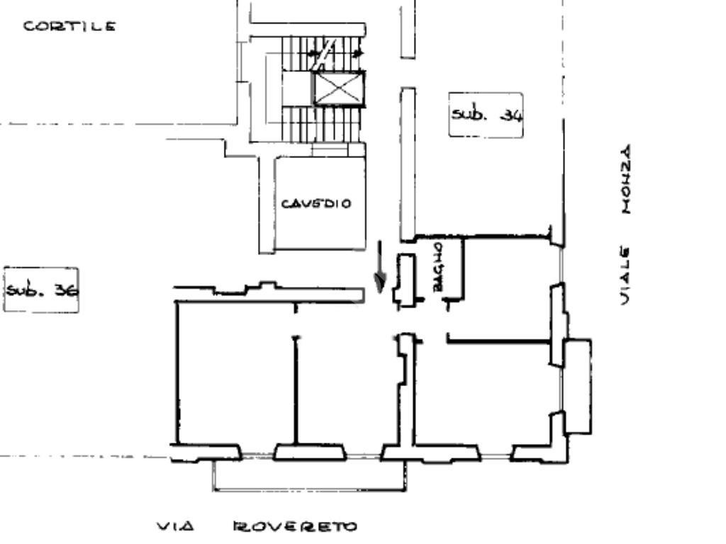
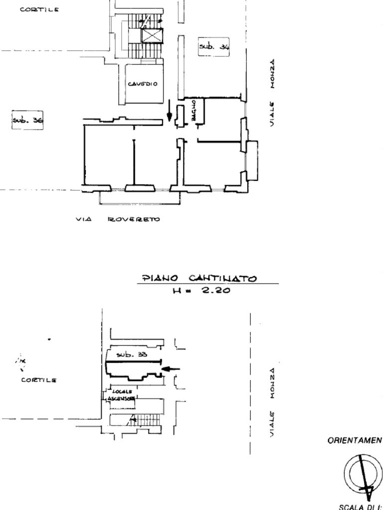
NoLo - Viale Monza - MM Rovereto. Nel cuore di NoLo a Milano, proponiamo un ampio appartamento situato al 2° piano di un edificio del 1930 con soffitti alti 3,35m. L'immobile si estende su una superficie di 95 mq circa funzionale e ben distribuito. L'appartamento è composto da ingresso, soggiorno con cucina a vista e balcone, tre camere da letto matrimoniali, di cui una con balcone, bagno finestrato.

Completa l'immobile il vano cantina al piano seminterrato.

L'appartamento ha doppia esposizione. L'edificio è dotato di ascensore e la sua posizione strategica in Viale Monza consente di godere di tutti i servizi e le comodità che la città di Milano offre, con ottimi collegamenti ai mezzi pubblici. Un'opportunità unica per chi cerca un'abitazione con il fascino del passato.

Vuoi sapere quanto vale il tuo immobile?
Con il nostro servizio di valutazione gratuita, ti forniremo una stima in linea con l'attuale andamento di mercato, redatta con tutta la nostra competenza e professionalità.

Mostra tutto

Nelle vicinanze

Trasporto pubblico Trasporto pubblico
Rovereto
Rovereto
80 m
Pasteur
Pasteur
520 m
Milano Centrale
Milano Centrale
1,4 Km
stazione di Milano Lambrate
stazione di Milano Lambrate
1,8 Km
Greco Rovereto
Greco Rovereto
270 m
Ricariche auto elettriche Ricariche auto elettriche
BeCharge Milano S. Rafael
950 m
A2A Isola Digitale Piazza Argentina
1,3 Km
U2 Supermercato Milano Vallazze | EnelX
1,3 Km
A2A Isola Digitale Stazione Centrale
1,6 Km
Becharge Milano Palestrina
1,7 Km
Scuole Scuole
Scuola Primaria Venini
170 m
Scuola primaria e secondaria di primo grado "Casa del Sole"
380 m
Scuole
560 m
Scuola secondaria di primo grado Rinaldi
570 m
Istituto Milano scuola paritaria
620 m
Farmacia Farmacia
Farmacia Bandi
30 m
Farmacia Confalonieri
200 m
Farmacia
340 m
Farmacia Dottor Berta
450 m
Farmacia Dottor Barni
660 m
Ospedali Ospedali
San Raffaele - Turro
1,0 Km
Istituto Clinico Città Studi
1,2 Km
Polo riabilitativo Istituto Gaetano Pini
1,4 Km
Poliambulatorio di via Don Orione
1,6 Km
Istituto Villa Marelli
2,0 Km
Supermercati Supermercati
Ok Sigma
170 m
Simply Market
440 m
Punto Simply
640 m
In'S mercato
660 m
Conad City
700 m
Negozi Negozi
M.A.C. Alimentari
0 m
La Deliziosa
40 m
Pinoy Food
50 m
Negozi
190 m
Nadia Mini Market
200 m
Bar Bar
NoLoSo
240 m
Baia Disco Club
260 m
Ghe Pensi Mi
300 m
Bar del 106
530 m
Salumeria del design
550 m
Ristoranti Ristoranti
Ristoranti
40 m
Jun's Mea
80 m
Osteria Sancio Pancia
80 m
Rovereto
140 m
Da Marco
160 m
Mostra tutto

Caratteristiche

Rif.:
61175351
Piano:
2 di 5 con ascensore (Piano medio)
Balconi:
2
Camere da letto:
3
Arredamento:
Assente
Condizionamento:
Assente
Mostra tutto
Prezzo Prezzo
€ 448.000
Rata mutuo Rata mutuo
€ 2.126 / mese
Proponi il tuo prezzoProponi il tuo prezzo

Classe Energetica

F
F
F
F
F
F
F
F
F
EP globale non rinnovabile:
0.00 kW h/m² anno
EP invernale del fabbricato:
EP estiva del fabbricato:
Anno di costruzione:
1950
Riscaldamento:
Autonomo
Tipo impianto:
A radiatori
Tipo alimentazione:
Metano

Ti interessa visionare l'immobile?

Fissa un appuntamento  Fissa un appuntamento

Richiedi informazioni

Clicca su Leggi per aprire l'informativa
* Questi campi sono obbligatori

Calcola il tuo mutuo

Semplice e senza impegno
Anticipo

( % )
Mutuo

( % )

pochi semplici passi

inserisci i tuoi dati
Questionario completato
Grazie per aver richiesto un appuntamento senza impegno con un nostro Consulente del Credito e Assicurativo.

Hai inserito correttamente tutti i dati necessari e a breve riceverai una e-mail con un link da convalidare per inviare i tuoi dati.
Affiliato
Studio Venini Sas
Via Venini, 59 20127 Milano (MI)

Il nostro staff


  • Alessandro Pucci
    Affiliato
Via Venini, 59 20127 Milano (MI)
Zona: Loreto - Venini - Rovereto
Mostra su mappa
Orari: da lunedì a venerdì: 9.00/12.30-14.30/20.00; sabato: 9.00/12.30-pomeriggio su appuntamento
Affiliato
Studio Venini Sas
Via Venini, 59 20127 Milano (MI)

2026 Tecnocasa Franchising S.p.A. - P. IVA 08365160152 - Via Monte Bianco 60/A 20089 Rozzano (MI). Ogni agenzia ha un proprio titolare ed è autonoma. Privacy policy | Policy utilizzo | Cookie policy