Quadrilocale in vendita

Milano, Via delle Leghe - Loreto Venini
€ 390.000
4 locali 4 locali
170 Mq 170 Mq
2 bagni 2 bagni

Quadrilocale in vendita

Milano, Via delle Leghe - Loreto Venini

Descrizione annuncio

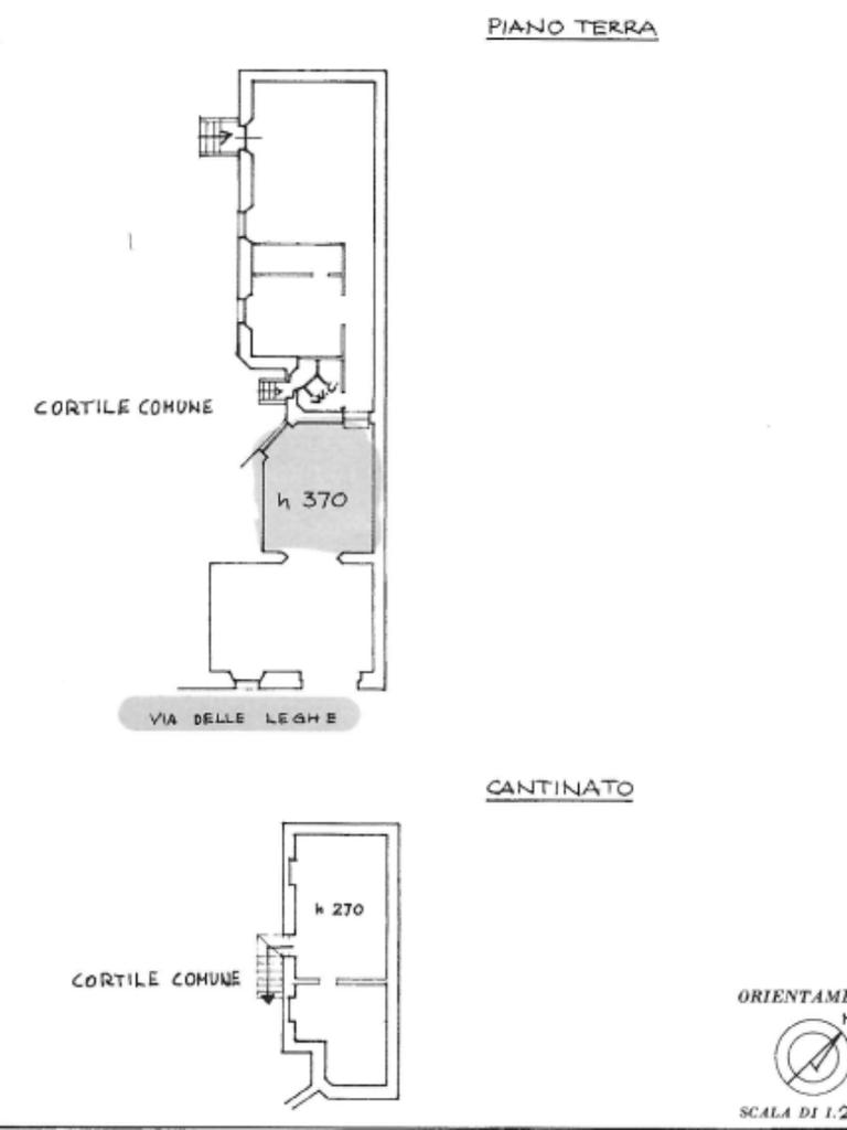
Nel cuore della vivace zona di Loreto Venini a Milano, proponiamo un immobile in stabile d'epoca risalente al 1930, situato al piano terra. Questo spazioso locale commerciale di 170 mq offre quattro locali completamente da ristrutturate. L'immobile ha la potenzialità di essere frazionato in due unità residenziali ed un locale con fini commerciali. Al piano seminterrato è presente una cantina con bocche di lupo e ingresso indipentente, attualmente è collegato con i locali al piano terra. La posizione strategica permette di godere di tutti i servizi e le comodità che la città offre, con ottimi collegamenti ai mezzi pubblici e facile accesso alle principali arterie stradali. Perfetto per chi desidera vivere in un contesto storico senza rinunciare alla comodità della vita urbana.

Mostra tutto

Nelle vicinanze

Trasporto pubblico Trasporto pubblico
Pasteur
Pasteur
260 m
Rovereto
Rovereto
390 m
Milano Centrale
Milano Centrale
1,1 Km
stazione di Milano Lambrate
stazione di Milano Lambrate
1,8 Km
Piazza Morbegno
Piazza Morbegno
60 m
Ricariche auto elettriche Ricariche auto elettriche
A2A Isola Digitale Piazza Argentina
960 m
BeCharge Milano S. Rafael
990 m
U2 Supermercato Milano Vallazze | EnelX
1,2 Km
A2A Isola Digitale Stazione Centrale
1,3 Km
Best Western Plus Hotel Galles
1,4 Km
Scuole Scuole
Scuola Primaria Venini
210 m
Istituto Milano scuola paritaria
400 m
Civico Polo Scolastico "Alessandro Manzoni"
540 m
Liceo Classico Giosuè Carducci
570 m
Scuola Secondaria di Primo Grado Teodoro Ciresola
570 m
Farmacia Farmacia
Farmacia
100 m
Farmacia Confalonieri
130 m
Farmacia Dottor Berta
190 m
Farmacia Bandi
340 m
Farmacia Dottor Barni
370 m
Ospedali Ospedali
Istituto Clinico Città Studi
1,0 Km
San Raffaele - Turro
1,3 Km
Polo riabilitativo Istituto Gaetano Pini
1,7 Km
Istituto Villa Marelli
1,9 Km
Poliambulatorio di via Don Orione
1,9 Km
Supermercati Supermercati
Simply Market
130 m
Conad City
380 m
Simply City Market
470 m
Ok Sigma
490 m
Pam
550 m
Negozi Negozi
City Mini Market
70 m
Lussy
90 m
Asian Market
110 m
Treesse
130 m
Kelly
170 m
Bar Bar
Ghe Pensi Mi
70 m
NoLoSo
80 m
Baia Disco Club
460 m
Salumeria del design
480 m
Il Gianguaro
500 m
Ristoranti Ristoranti
Al tempio d'oro
10 m
Sabor Peruano
70 m
Osteria della Pasta e Fagioli
80 m
Il Tiglio
90 m
Blue Nami
110 m
Mostra tutto

Caratteristiche

Rif.:
61133881
Piano:
Terra di 4 con ascensore
Totale piani:
4
Arredamento:
Assente
Condizionamento:
Assente
Ascensore:
Mostra tutto
Prezzo Prezzo
€ 390.000
Rata mutuo Rata mutuo
€ 1.798 / mese
Proponi il tuo prezzoProponi il tuo prezzo

Altre caratteristiche

Classe Energetica

G
G
G
G
G
G
G
G
G
EP invernale del fabbricato:
EP estiva del fabbricato:
Anno di costruzione:
1930
Riscaldamento:
Autonomo
Tipo impianto:
A radiatori
Tipo alimentazione:
Metano

Ti interessa visionare l'immobile?

Fissa un appuntamento  Fissa un appuntamento

Richiedi informazioni

* Questi campi sono obbligatori

Calcola il tuo mutuo

Semplice e senza impegno
Anticipo

( % )
Mutuo

( % )

pochi semplici passi

inserisci i tuoi dati
Questionario completato
Grazie per aver richiesto un appuntamento senza impegno con un nostro Consulente del Credito e Assicurativo.

Hai inserito correttamente tutti i dati necessari e a breve riceverai una e-mail con un link da convalidare per inviare i tuoi dati.
Affiliato
Studio Venini Sas
Via Venini, 59 20127 Milano (MI)

Il nostro staff


  • Alessandro Pucci
    Affiliato
Via Venini, 59 20127 Milano (MI)
Zona: Loreto - Venini - Rovereto
Mostra su mappa
Orari: da lunedì a venerdì: 9.00/12.30-14.30/20.00; sabato: 9.00/12.30-pomeriggio su appuntamento
Affiliato
Studio Venini Sas
Via Venini, 59 20127 Milano (MI)

2025 Tecnocasa Franchising S.p.A. - P. IVA 08365160152 - Via Monte Bianco 60/A 20089 Rozzano (MI). Ogni agenzia ha un proprio titolare ed è autonoma. Privacy policy | Policy utilizzo | Cookie policy