Loft in vendita

Milano, Via Ferrante Aporti - Loreto Venini
€ 298.000
3 locali 3 locali
75 Mq 75 Mq
1 bagno 1 bagno

Loft in vendita

Milano, Via Ferrante Aporti - Loreto Venini

Descrizione annuncio

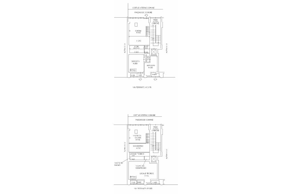
. NUOVO e LUMINOSO LOFT con SOPPALCO e ampia metratura di pertinenza. In particolare proponiamo in vendita l'unità 'ASINARI' un luminoso e funzionale Loft Appartamento, composto da Piano Terra, con Ampia zona giorno con CUCINA lineare di 5 elementi con annessa zona pranzo per 4 persone, ampia zona BAGNO con un confortevole doccia, grande SALA HOBBY con possibilità di ampia armadiatura- Soppalco, con LIVING molto luminoso e funzionale (75 mq - 298.000 ). Riscaldamento autonomo ed aria condizionata canalizzata.

Immobile costruito intorno agli anni ’60, servito da una rete capillare di
collegamenti pubblici.
Gli Appartamenti dell’Iniziativa sono nuovi, completamente ristrutturati, con Impianti
certificati e si trovano al Piano Terra.
Caratteristiche Immobile
Muratura in laterizio con isolamento acustico. Pareti Perimetrali
Muratura in laterizio. Pareti Interne divisorie
Pavimentazione in gres porcellanato (piano terra);
Parquet prefinito essenza rovere naturale(soppalco);
Bagno: finitura pareti smalto lavabile;
Doccia: piatto doccia e rivestimento doccia in Gres porcellanato.
Pavimenti e Rivestimenti
Impianti idrico-sanitario ed elettrico nuovi con certificazioni;
Acqua calda sanitaria con scaldabagno elettrico;
Piano cottura a induzione;
Riscaldamento/ Raffreddamento autonomo a pompa di calore
Impiantistica
Portoncino blindato d’ingresso;
Serramenti in PVC a taglio termico certificati;
Tapparelle(lato strada)
Serranda sicurezza (lato strada)
Serramenti interni e
esterni
Impianto Allarme Volumetrico Pre

La posizione è estremamente comoda, essendo vicino alle stazioni della metropolitana MM1, MM2 LORETO, MM2 CAIAZZO e MM3 CENTRALE. Inoltre, è ben servito dai supermercati, asili e scuole, nonché dalla linea di superficie tranviaria e dalla Stazione Centrale di Immobiliare FERRANTE APORTI 54 fa parte di un importante complesso di immobili costituito da quattro fabbricati distinti costruiti intorno agli anni '60, al bordo di una delle zone più attrattive della città di MILANO: quartiere . (North of Loreto) sta procedendo a piccoli passi verso il futuro attraverso una attenta riqualificazione promossa dal Comune di Milano, unendo le sinergie tra la zona residenziale e l'area commerciale, multiculturale e vivace, che mantiene un piacevole microclima di comunità con negozi storici e tradizioni antiche. I luoghi di ritrovo non mancano, e alcuni sono punto di ritrovo più alla moda del life style milanese. Altra espressione dell'estrosità del quartiere è rappresentata dalla street art, una forma d'arte che trova nella zona di . il punto brevissima distanza dallo stabile, si trova sia la fermata della metropolitana M1 Pasteur (linea rossa), ad 1 sola fermata di distanza da Piazzale Loreto, interscambio anche con la linea verde M2, sia le fermate del tram e i bus con collegamento diretto da e per la Stazione Centrale e le navette verso gli aeroporti di Milano Linate, Malpensa ed Orio al Serio. La struttura viaria porta Via

Offriamo un servizio di valutazione gratuita per conoscere il valore dell'immobile. Non lasciarti sfuggire questa opportunità! Contattaci per ulteriori informazioni e per prenotare una visita.

Mostra tutto

Nelle vicinanze

Trasporto pubblico Trasporto pubblico
Rovereto
Rovereto
420 m
Pasteur
Pasteur
510 m
Milano Centrale
Milano Centrale
1,1 Km
stazione di Milano Lambrate
stazione di Milano Lambrate
2,1 Km
Greco Rovereto
Greco Rovereto
150 m
Ricariche auto elettriche Ricariche auto elettriche
BeCharge Milano S. Rafael
720 m
A2A Isola Digitale Piazza Argentina
1,1 Km
A2A Isola Digitale Stazione Centrale
1,3 Km
U2 Supermercato Milano Vallazze | EnelX
1,5 Km
Best Western Plus Hotel Galles
1,5 Km
Scuole Scuole
Scuola Primaria Venini
240 m
Istituto Milano scuola paritaria
670 m
Scuola Secondaria di Primo Grado Teodoro Ciresola
690 m
Liceo Classico Giosuè Carducci
720 m
Civico Polo Scolastico "Alessandro Manzoni"
730 m
Farmacia Farmacia
Farmacia
180 m
Farmacia Confalonieri
340 m
Farmacia Dottor Barni
350 m
Farmacia Bandi
410 m
Farmacia Dottor Berta
450 m
Ospedali Ospedali
Istituto Clinico Città Studi
1,3 Km
San Raffaele - Turro
1,4 Km
Polo riabilitativo Istituto Gaetano Pini
1,6 Km
Istituto Villa Marelli
1,6 Km
Humanitas San Pio X
2,0 Km
Supermercati Supermercati
Simply Market
340 m
Conad City
490 m
Ok Sigma
510 m
Carrefour Expres
600 m
Simply City Market
700 m
Negozi Negozi
Carrefour Express
190 m
City Mini Market
220 m
Nadia Mini Market
240 m
Lussy
290 m
Negozi
310 m
Bar Bar
Ghe Pensi Mi
210 m
NoLoSo
300 m
Baia Disco Club
360 m
Tunnel Club
480 m
Il Gianguaro
590 m
Ristoranti Ristoranti
Chifa Peru
80 m
El Rincón de Lupita
110 m
El Chorrillano
120 m
Aki Me Kedo
140 m
Ristoranti
160 m
Mostra tutto

Caratteristiche

Rif.:
61131003
Piano:
Terra di 7 con ascensore
Totale piani:
7
Camere da letto:
2
Arredamento:
Assente
Condizionamento:
Autonomo
Mostra tutto
Prezzo Prezzo
€ 298.000
Rata mutuo Rata mutuo
€ 1.374 / mese
Spese annue Spese annue
€ 1.400
Proponi il tuo prezzoProponi il tuo prezzo

Classe Energetica

C
C
C
C
C
C
C
C
C
EP globale non rinnovabile:
115.32 kW h/m² anno
EP invernale del fabbricato:
EP estiva del fabbricato:
Anno di costruzione:
1960
Riscaldamento:
Autonomo
Tipo impianto:
Ad aria
Tipo alimentazione:
Altro

Ti interessa visionare l'immobile?

Fissa un appuntamento  Fissa un appuntamento

Richiedi informazioni

* Questi campi sono obbligatori

Calcola il tuo mutuo

Semplice e senza impegno
Anticipo

( % )
Mutuo

( % )

pochi semplici passi

inserisci i tuoi dati
Questionario completato
Grazie per aver richiesto un appuntamento senza impegno con un nostro Consulente del Credito e Assicurativo.

Hai inserito correttamente tutti i dati necessari e a breve riceverai una e-mail con un link da convalidare per inviare i tuoi dati.
Affiliato
Studio Venini Sas
Via Venini, 59 20127 Milano (MI)

Il nostro staff


  • Alessandro Pucci
    Affiliato
Via Venini, 59 20127 Milano (MI)
Zona: Loreto - Venini - Rovereto
Mostra su mappa
Orari: da lunedì a venerdì: 9.00/12.30-14.30/20.00; sabato: 9.00/12.30-pomeriggio su appuntamento
Affiliato
Studio Venini Sas
Via Venini, 59 20127 Milano (MI)

2025 Tecnocasa Franchising S.p.A. - P. IVA 08365160152 - Via Monte Bianco 60/A 20089 Rozzano (MI). Ogni agenzia ha un proprio titolare ed è autonoma. Privacy policy | Policy utilizzo | Cookie policy